Zur Navigation springen Zum Inhalt springen Zum Footer springen
Schließen

Orthopädieschuhtechnik in Siegen

Mehr als Maßarbeit. Sie bietet Raum für Beratung, Funktion und Stil

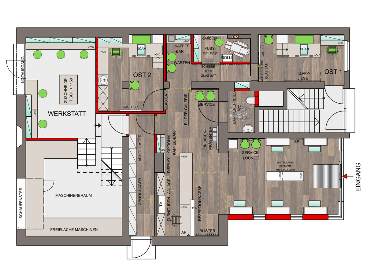
Im Rahmen der Neugestaltung eines Orthopädieschuhgeschäfts wurden wir ab der Ausbauphase als Objekteinrichter hinzugezogen. Bäuerlein Objektdesign übernahm dabei die vollständige Ausbauplanung und -umsetzung im Bereich Ladenbau und Orthopädiebau – von der detaillierten Ausführungsplanung bis zur schlüsselfertigen Übergabe.

Ein besonderes Highlight des Projekts war der Anbau für den Ladenbereich in moderner Holzbauweise. Diese Bauweise überzeugt nicht nur architektonisch durch ihre warme, natürliche Ausstrahlung, sondern erfüllt auch nachhaltige Anforderungen an zeitgemäßen Ladenbau. Durch den gezielten Einsatz ressourcenschonender Materialien entstand ein zukunftsorientiertes Raumkonzept, das sowohl ökologischen als auch funktionalen Ansprüchen gerecht wird. Ergänzend dazu wurde eine Maßkabine integriert, die speziell für die Beratung und individuelle Anpassung von Einlagen konzipiert ist. Sie ermöglicht eine diskrete, ergonomische und professionelle Betreuung der Kunden – ein zentraler Bestandteil im hochwertigen Orthopädiebau.

Die gesamte Einrichtung wurde exakt auf die Anforderungen eines orthopädischen Fachbetriebs abgestimmt. Eine barrierefreie Gestaltung sorgt für einen uneingeschränkten Zugang und unterstützt die intuitive Orientierung im Raum. Gleichzeitig gewährleisten ergonomisch optimierte Arbeitsplätze effiziente Abläufe für Orthopädieschuhtechniker und tragen zur langfristigen Qualität der handwerklichen Leistungen bei.

Auch die kundenfreundlichen Präsentations- und Beratungszonen sind ein wesentlicher Bestandteil des Konzepts. Produkte werden übersichtlich und ästhetisch präsentiert, während Beratungsbereiche eine angenehme, vertrauensvolle Atmosphäre schaffen. Hochwertige Materialien und eine klare Formensprache unterstreichen den professionellen Anspruch und sorgen für eine nachhaltige Wertigkeit des gesamten Innenausbaus.

Das Ergebnis ist ein durchdachtes Ladenbaukonzept, das Funktionalität, Design und medizinische Anforderungen im Orthopädiebau optimal vereint. Mit diesem Projekt zeigt Bäuerlein Objektdesign erneut seine Kompetenz, spezialisierte Fachgeschäfte effizient, modern und kundenorientiert zu realisieren.